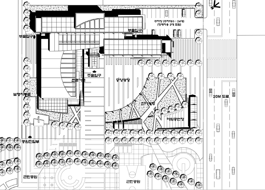
시흥시 여성회관
페이지 정보
작성자 최고관리자 댓글 0건 조회 142회 작성일 24-06-20 14:06본문
연도:2000(현상공모 우수작) , 위치:경기도 시흥시 정왕동 1800-7 , 연면적:5,111.07㎡(1,547.00평) , 규모:지하 1층, 지상 4층
Project
㈜종합건축사사무소
도가에이앤디
대표 : 김유성
서울특별시 강남구
학동로7길 5 , 1층
TEL.
02-541-8937
Email.
doga8937@daum.net

Copyright (c) 도가에이앤디. All Rights Reserved.