가회동 단독주택
페이지 정보
작성자 최고관리자 댓글 0건 조회 51회 작성일 26-02-23 17:24본문
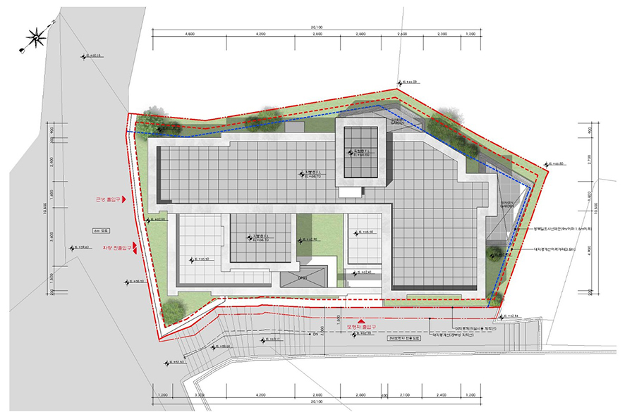
연도:2019년 , 위치: 서울특별시 종로구 가회동 , 연면적: 465.17㎡ , 규모:지하 1층, 지상 2층
Project
㈜종합건축사사무소
도가에이앤디
대표 : 김유성
서울특별시 강남구
학동로7길 5 , 1층
TEL.
02-541-8937
Email.
doga8937@daum.net

Copyright (c) 도가에이앤디. All Rights Reserved.